Miércoles, 16 de abril de 2025

Estudio Carbajal gana la licitación para la reforma y ampliación de la Facultad de Farmacia de la US

Estudio Carbajal, con la colaboración de Antonio Barrionuevo, ha ganado la licitación para la reforma y ampliación (Fase 1) de la Facultad de Farmacia de la Universidad de Sevilla.

El proyecto

La Facultad de Farmacia está formada por una agrupación de tres edificaciones construidas en el tiempo: el edificio original levantado en 1982, obra de notable valor del arquitecto Alberto Donaire; el aulario de una planta colindante con el Paseo de Bonanza y el construido en 1994 junta a la calle Sor Gregoria de Sta. Teresa. El nuevo proyecto, resultante de una intervención global prevista en sucesivas etapas, proporcionará además de los servicios generales solicitados, espacios de trabajo y docencia luminosos, ventilados y climáticamente adaptados que sustituyan el deteriorado y caótico estado actual.

La propuesta de Estudio Carbajal plantea como primera estrategia de intervención activar el espacio lineal medianero existente con el Colegio Mayor Hernando Colón, que comunica la calle Sor Gregoria de Santa Teresa con el Paseo de Bonanza, hoy residual y trasero, convirtiéndolo en un Pasaje Farmacéutico y generando al tiempo una nueva fachada norte de la Facultad.  Pasaje al que se vincularán servicios como la cafetería, la copistería o los comedores de alumnos y profesores, la sala de estudio (24 horas) o la clínica CUO (que debe tener entrada independiente). Este pasaje-jardín tamizado mediante pérgolas y plantaciones sobre la tapia medianera restaurada, se convertirá en lugar de estancia y convivencia al aire libre con terrazas y aparcamiento controlado para bicicletas, dando paso a los nuevos accesos a la facultad. Permitirá a su vez registrar y atravesar la enorme manzana a la que pertenece la facultad y que hoy día solo es posible circunvalar.

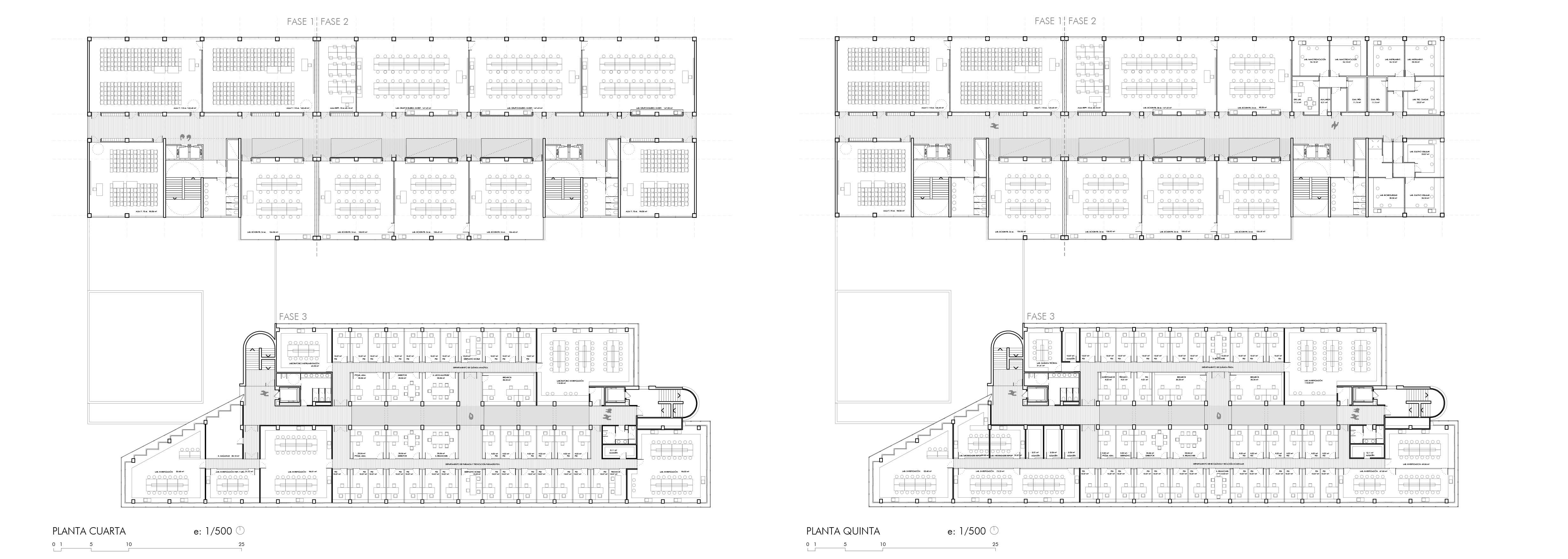
Los espacios necesarios en la ampliación ocuparán un edificio nuevo que constará de sótano, planta baja, cinco plantas superiores, ático y sobre ático, cuya planta tipo se proyecta articulada por una galería central a modo espina dorsal. La particularidad de esta galería es la luz y ventilación natural que recibe de las fachadas extremas y en su parte central al introducir un patio lineal adosado que la acompaña, ampliándola, duplicándola, convirtiéndola con su luminosidad y sus bancos de ante clase en un espacio amable de convivencia universitaria.

En planta baja, esta galería sumada al patio ajardinado formaliza un ámbito central de servicios generales visualmente comunicado por particiones acristaladas. Un eje que recibe en su extremo oeste la galería transversal de conexión con el edificio original, relacionando la entrada sur (C/ Prof. García González) con las nuevas creadas en el pasaje medianero con el Colegio Hernando Colón. Este patio arbolado y acompañado de una galería perimetral porticada, acoge una rampa que da acceso al sótano destinado a los aparcamientos, instalaciones y almacenes del sótano.

A caballo entre ambos edificios se sitúan el salón de grados y el aula magna, que posee una cubierta de mayor altura como corresponde a la singularidad y el aforo de este espacio. Su ingreso principal se ha situado en relación con el vestíbulo actual de la facultad para poder celebrar actos con independencia de los horarios lectivos.

Para expresar el carácter de la institución, además de los objetos históricos que mostrará el museo en vitrinas, se introducirán murales cerámicos en las galerías que representen plantas medicinales y se dedicará la terraza del ático para sembrar una colección de estas plantas convirtiéndola en cubierta vegetada y en aula viva, ilustrativa del Museo de la Farmacia que cuenta con un espacio propio en la planta primera junto al Decanato.

La disposición de los núcleos de comunicaciones y los servicios dispuestos en los tramos finales de la espina dorsal, posibilita la diafanidad de las crujías y una distribución funcional flexible. Y esta organización modular hace posible la adaptación del programa de necesidades específico de cada área departamental y laboratorios asociados, así como los cambios que pudieran devenir con el tiempo. Su perímetro acristalado favorece la iluminación y ventilación general de estas salas y su envolvente exterior de aluminio contribuirá a la eficiencia energética de la edificación.

La intervención en el edificio original ha respetado los espacios generales que lo caracterizan, como el sistema de entrada, la escalinata principal con sus amplias mesetas, los núcleos de comunicación vertical con sus servicios higiénicos asociados y sus fachadas renovadas ante las exigencias energéticas vigentes y, en especial, su estructura general de doble crujía, de luces de 10 metros y galería central de 3 metros. Su adecuación, íntegramente dedicada a la ubicación de los departamentos, se ha dirigido a procurar la mayor iluminación natural en una edificación de notable anchura. Para ello, en la planta baja, 1ª y 2º se han dispuesto unos corredores lineales centrados en cada una de las crujías laterales que, reunidos por otros transversales de conexión con los núcleos de comunicación vertical, constituyen un anillo circulatorio que da accesos a los despachos situados en su derredor, recibiendo estos luz natural de las fachadas exteriores; y entrada a los laboratorios asociados que quedan en el interior de este anillo. Y a partir de la 4ª planta se plantea una operación estructural, el vaciado de la actual galería central para constituir un vacío de luz cenital encontrando acomodo los despachos interiores al anillo y conectándose las dependencias a uno y otro lado por un único paso centrado a modo de puente.