Domingo, 28 de julio de 2024

Bulnes + Elliott gana el concurso para la construcción de ocho viviendas en Arroyo de la Luz (Cáceres)

El estudio Bulnes + Elliott Arquitectos, constituido por Pilar Ruiz Bulnes y Jacinto Pérez-Elliott Fernández, ha obtenido el primer premio en el concurso para la construcción de ocho viviendas de promoción pública energéticamente eficientes en un edificio plurifamiliar, situado en la calle Villabona nº23, de Arroyo de la Luz (Cáceres). El objeto de este concurso es la prestación de los servicios necesarios para la redacción del proyecto y el estudio de seguridad y salud.

CUATRO [X] CUATRO

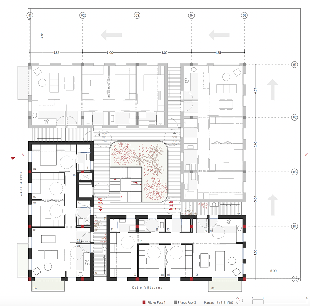
Cuatro por cuatro investiga acerca de una nueva tipología de inmueble de planta cuadrada, donde cuatro piezas -iguales, pero bien diferencias- giran en torno a un patio central.

Este sistema permite, por un lado, el crecimiento progresivo de la edificación en función de la demanda. De este modo, la primera fase a ejecutar, consistente en ocho viviendas, correspondería con la construcción de dos de las piezas en esquina (4 viviendas por pieza). Progresivamente, podría construirse una tercera pieza, con tres viviendas por planta (y planta baja libre para aparcamientos) y, finalmente, una cuarta pieza con otras tres viviendas más. Se completaría así de manera progresiva e independiente la construcción de las 14 viviendas que permite la normativa en el presente solar.

Por otro lado, esta tipología puesta en práctica cuenta con numerosas ventajas en el ámbito climático. La separación de las piezas, así como su disposición en torno a un patio permite una ventilación cruzada total, un aislamiento acústico pasivo entre viviendas y la generación de un microclima que autorregula los espacios comunes.

En cuanto a la distribución del interior de las piezas, estas se conforman en bandas diferenciadas. Las instalaciones se concentran y los espacios servidos quedan liberados. Se dota así a las viviendas de gran flexibilidad, puesto que los tabiques siempre pueden ser reconfigurados. Cabe también destacar la reconceptualización de la disposición de los baños. En uno de ellos, las funciones aparecen divididas de modo que usos que tradicionalmente se han entendido juntos, aparecen ahora como funciones independientes. Se permite así que ambas cabinas puedan usarse simultáneamente. Todo ello, con el fin de generar unas viviendas que se adapten a las necesidades aún por conocer de los futuros inquilinos.