Jueves, 25 de julio de 2024

El CSCAE incluye la sevillana “Casa de los nueve pórticos” en #ArquitecturasParaLaIgualdad

¿Imaginas un espacio donde los roles familiares se redibujan, donde se visibiliza el trabajo doméstico y se suspenden las diferencias de género? ¿Imaginas una vivienda pensada para que sus habitantes se cuiden mutuamente y una plaza pública que fomenta el juego libre, inclusivo y diverso entre niños y niñas? Pues no hace falta imaginarlas. Estos espacios existen. Son una realidad que impregna el territorio de nuestro país y, en la provincia de Sevilla, concretamente, en Castilleja de la Cuesta, tienen un buen ejemplo en la “Casa de los nueve pórticos”. Proyectada, en 2022, por el estudio sevillano Sol89, la vivienda refleja el poder transformador de la Arquitectura para avanzar hacia una sociedad más humana, más justa y equitativa. Así lo considera el Consejo Superior de los Colegios de Arquitectos de España (CSCAE), que, a través de su Comisión de Género, la ha incluido dentro de la campaña #ArquitecturasParaLaIgualdad. Una iniciativa que inició el pasado 8 de marzo, con motivo del Día Internacional de la Mujer, y que se desarrolla en todas las redes sociales del CSCAE (Twitter, Instagram, Facebook y LinkedIn). 

Desde ese momento, y a razón de un ejemplo al mes, coincidiendo con los ya consolidados #JuevesDeArquitectura, #ArquitecturasParaLaIgualdad ha permitido visibilizar proyectos que, desde la diversidad que existe en las formas de ejercer la Arquitectura, favorecen la igualdad entre mujeres y hombres, lo que, a su vez, beneficia al conjunto de la población. “En los Colegios de Arquitectos y en el Consejo Superior, tenemos claro que la igualdad es un valor transversal. El objetivo de esta campaña es que la ciudadanía conozca, de forma directa, en el día a día, de qué forma la Arquitectura y sus valores impactan en nuestras vidas y nos las mejoran”, subraya la tesorera y coordinadora de la Comisión de Género del CSCAE, María José Peñalver.

La “Casa de los nueve pórticos” es la protagonista de la campaña #ArquitecturasParaLaIgualdad hoy, 25 de julio. Hasta ahora, se han difundido las 85 viviendas sociales de Cornellà, de Peris+Toral; la intervención en el Paseo Fluvial del río Segura, en Murcia; el libro Arquitectura con arquitectas, el proyecto de viviendas “Txirikorda”, en el País Vasco, y la Unidad de Igualdad de Torrefiel-Orriols, en Valencia.



Una casa para cuidarse mutuamente y compartir con amigos 

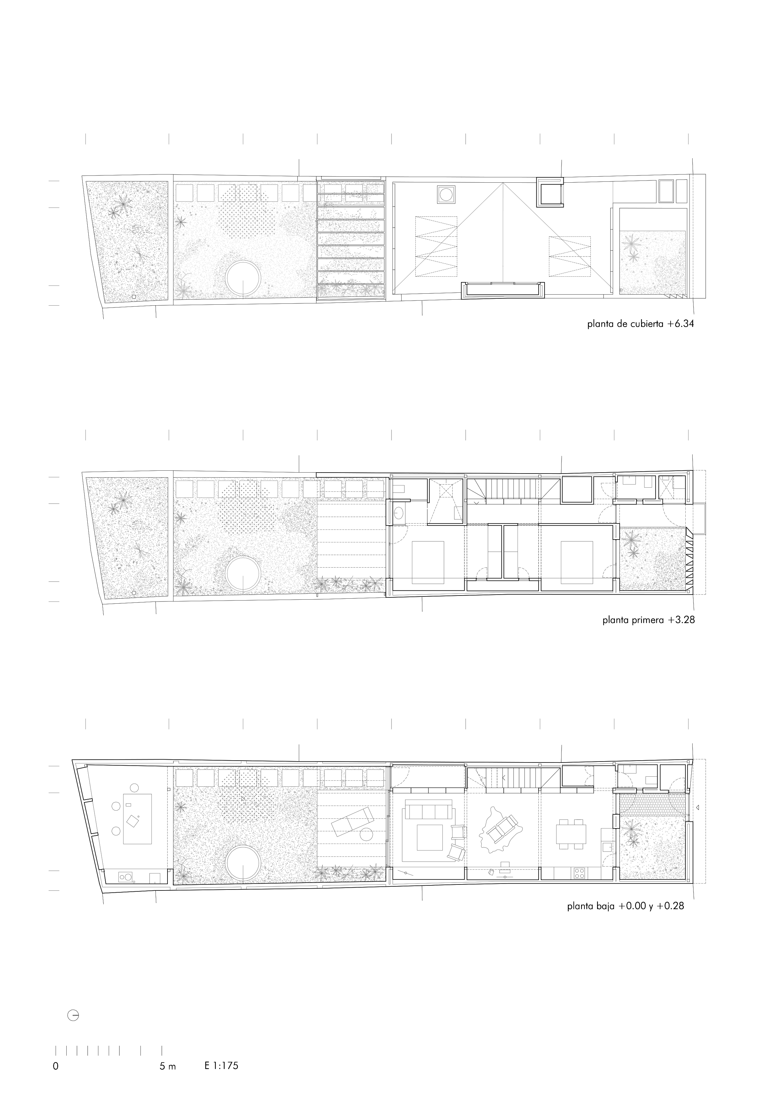
Cada vivienda está ligada a las circunstancias vitales de sus habitantes y, en el caso de la “Casa de los nueve pórticos”, refleja la historia de Gemma y Álvaro, una pareja -ella catalana y él asturiano- que, tras una vida en Bélgica, y ya mayores, decidieron regresar a España y, aunque nunca habían vivido en Andalucía, apostaron por construir su hogar en el Sur. Buscaban un lugar en el que tuvieran amigos/as cerca y, sobre todo, los/as arquitectos de Sol89, María González y Juanjo López de la Cruz: “Nos pidieron una casa donde no perderse nunca de vista, de ahí la diafanidad y la visibilidad de casi todo, incluido el baño abierto al dormitorio, y que cada espacio pudiera ser compartido, como la ducha, que pasa a ser un habitación, un hammam, o la alberca, remedo de los recuerdos del patio y el jardín de la infancia de Gemma, donde un caqui y un pozo aliviaban las horas de calor”. 

Con un programa sencillo que demuestra el importante papel que tienen los/as arquitectos/as de escucha y acompañamiento de las personas para materializar sus sueños de vida en proyectos, la “Casa de los nueve pórticos” está pensada para acoger y compartir. Los espacios están conectados visualmente. La casa se remata con un porche al fondo, un pequeño pabellón abierto que mira hacia la vivienda, donde pintar o cocinar para los/as amigos/as en una “cocina económica” (de leña y placas de hierro fundido), buscando siempre compartir a través de la tranquilidad y el reencuentro. Las proporciones del solar y la memoria agrícola de estas parcelas inspiraron un diseño por repetición de pórticos equidistantes que dan nombre a la vivienda y crean un espacio continuo que va matizando sus características ambientales y funcionales. 

La “Casa de los nueve pórticos” conjuga la innovación industrial con el respeto a la tradición arquitectónica local. Esto se logra con una estructura ligera de acero detrás de una fachada sólida y blanca, creando contrastes de llenos y vacíos, luz y sombra.  

Firme compromiso con la igualdad

El compromiso con la equidad entre mujeres y hombres y la necesidad de hacerla real y efectiva tanto dentro de la red colegial como en el ejercicio de la arquitectura, consiguiendo que se amplíe al conjunto del sector de la edificación, como un valor añadido, es una de las señas de identidad del Consejo Superior de los Colegios de Arquitectos de España (CSCAE). Desde que, en el año 2018, creó la Comisión de Género, la institución ha desarrollado diferentes proyectos para avanzar en este camino. Entre ellas, destacan la adhesión, en 2018, a la iniciativa del Parlamento Europeo #DóndeEstánEllas, destinada a promover y visibilizar el talento femenino en todas las actividades que promueven el CSCAE y los Colegios Oficiales de Arquitectos; en el año 2020, la puesta en marcha de Cimientos de Igualdad, que, en el marco del Observatorio 2030 del CSCAE, persigue romper los ‘techos de cristal’ en el sector de la edificación y atraer el talento femenino, y, en 2022, la presentación del Estudio sobre la situación de las mujeres en la Arquitectura en España, coordinado por la arquitecta y directora de la Cátedra UNESCO de Género en Ciencia, Tecnología e Innovación de la Universidad Politécnica de Madrid, Inés Sánchez de Madariaga. En esa labor continua, en 2023, se dotó del I Plan de Igualdad del CSCAE, coordinado también por Sánchez de Madariaga.


Fotografías: Fernando Alda